A Nociglia, proponiamo in vendita, un interessante immobile indipendente con piccolo scoperto pavimentato .
La casa dispone di due comodi ingressi, uno dei quali da uno dei caratteristici vicoli del centro storico che arrivano proprio vicino al palazzo ducale.
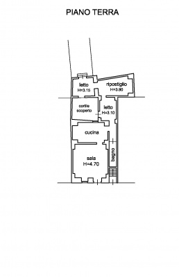
Si compone di 5 vani, tutti con volta a stella o a botte e, un bagno.
Completa la proprietà l'area solare libera alla quale si accede da comoda scala esterna.
La proprietà è completamente da ristrutturare, offre quindi la possibilità di personalizzarlo e ridisegnare gli spazi.
Presente allaccio di acqua e fogna.
OTTIMO INVESTIMENTO!












































